Quadrilocale in vendita

Cagliari, Via Arcangelo Corelli - San Benedetto
€ 325.000
Prezzo aggiornato
4 locali 4 locali
123 Mq 123 Mq
2 bagni 2 bagni

Quadrilocale in vendita

Cagliari, Via Arcangelo Corelli - San Benedetto

Descrizione annuncio

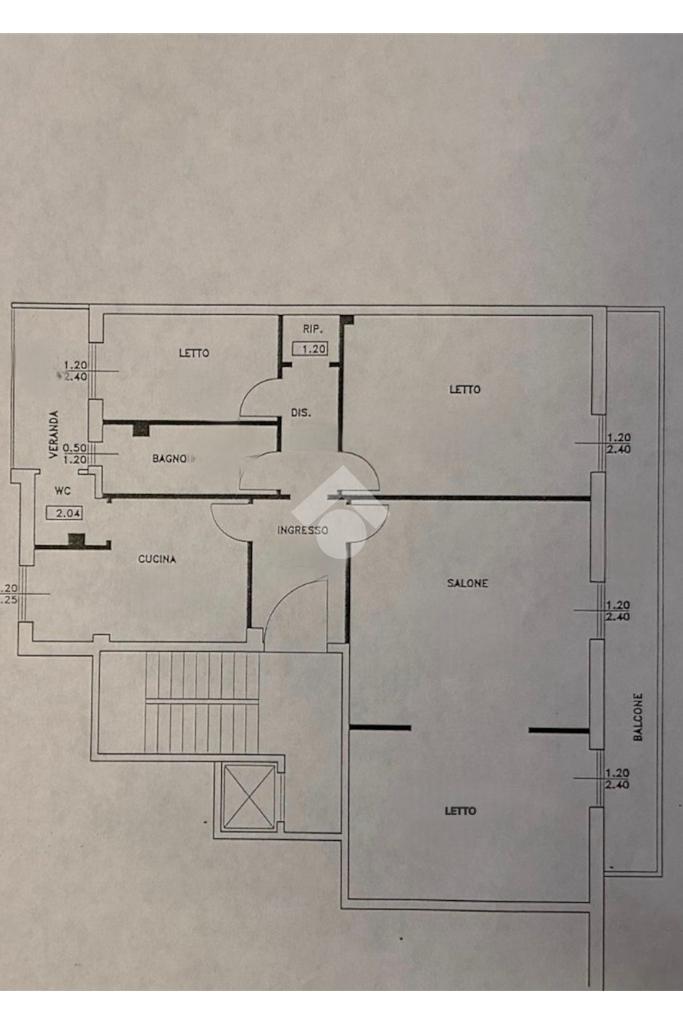
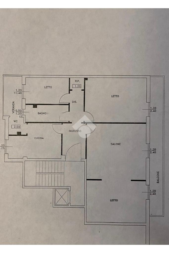
Quadrilocale ristrutturato – Via Arcangelo Corelli, San Benedetto.

Nel quartiere di San Benedetto, proponiamo in vendita un elegante quadrilocale situato al terzo piano di un edificio dotato di ascensore, recentemente rinnovato anche nelle parti comuni, incluso l’atrio d’ingresso.

L’appartamento, completamente ristrutturato nel 2023, si distingue per la doppia esposizione e la distribuzione degli spazi ampi e ben separati, dotati di impianti nuovi e completi di tutte le certificazioni. È composto da un ampio soggiorno, cucina separata, due camere matrimoniali, una camera singola, due bagni completi, oltre un comodo ripostiglio. Completa la proprietà un ampio balcone con affaccio sulla via principale, ideale per momenti di relax all’aperto.

Gli infissi in alluminio doppio vetro camera, le serrande in PVC, le zanzariere in tutti gli ambienti e l'impianto di climatizzazione Daikin in ogni ambiente garantiscono comfort e praticità. L’immobile viene ceduto completo di arredi, pronto per esser abitato sin da subito, ottimo per chi cerca una soluzione già pronta nel cuore della città.

Una proposta raffinata, ideale per chi desidera ambienti ben organizzati in una zona comoda e servita, con ogni dettaglio curato per garantire.
Ideale non solo come abitazione principale ma anche come investimento: l’immobile infatti, è già avviato da diversi anni come attività ricettiva per soggiorni brevi, garantisce un’ottima resa con redditi documentabili e e qualità.

Una soluzione che ad oggi, all’interno del quartiere di San Benedetto, è sempre più rara da trovare.

Mostra tutto

Nelle vicinanze

Trasporto pubblico Trasporto pubblico
Cagliari
Cagliari
1,9 Km
Cagliari Santa Gilla
Cagliari Santa Gilla
2,7 Km
Gennari
Gennari
380 m
Genneruxi
Genneruxi
480 m
Pergolesi (ang. via Rossini)
Pergolesi (ang. via Rossini)
40 m
Scuole Scuole
Pontificia Facoltà Teologica della Sardegna
460 m
Scuole
480 m
Scuola Elementare
620 m
Scuola Media Regina Elena
650 m
Scuola Elementare di via Stoccolma
660 m
Farmacia Farmacia
Farmacia Severino
560 m
Farmacia
660 m
Farmacia Solinas
690 m
Piga
720 m
Farmacia San Benedetto
800 m
Ospedali Ospedali
Clinica Villa S.Elena
470 m
Casa di cura Sant'Anna
1,0 Km
Pronto Soccorso San Giovanni di Dio
1,4 Km
Cittadella della Salute
1,4 Km
ospedale San Giovanni di Dio
1,4 Km
Supermercati Supermercati
Gieffe
20 m
Amelia Pam
220 m
Supermercato Gruppo ISA
410 m
Despar
450 m
Super Pan
520 m
Negozi Negozi
Crai
180 m
DA.MARÒ Pane&Dolcezze
190 m
Despar Mini Market
220 m
United Colors of Benetton
260 m
Intimissimi Donna
260 m
Bar Bar
Bar
410 m
Bar Monte Urpinu
530 m
Matthew's Bar
730 m
Florio
880 m
Bar Florio
900 m
Ristoranti Ristoranti
Ristoranti
310 m
My Flower
330 m
Ginza
470 m
Bliss
590 m
Su stampu pizzeria
600 m
Mostra tutto

Caratteristiche

Rif.:
61139456
Piano:
3 di 6 con ascensore (Piano medio)
Balconi:
2
Camere da letto:
3
Arredamento:
Completo
Condizionamento:
Autonomo
Mostra tutto
Prezzo Prezzo
€ 325.000
Rata mutuo Rata mutuo
€ 1.544 / mese
Spese annue Spese annue
€ 620
Proponi il tuo prezzoProponi il tuo prezzo

Classe Energetica

C
C
C
C
C
C
C
C
C
EP invernale del fabbricato:
EP estiva del fabbricato:
Anno di costruzione:
1970
Riscaldamento:
Autonomo
Tipo impianto:
Ad aria
Tipo alimentazione:
Aria

Prezzo ridotto di €1 (3%%)

Ti interessa visionare l'immobile?

Fissa un appuntamento  Fissa un appuntamento

Richiedi informazioni

Clicca su Leggi per aprire l'informativa
* Questi campi sono obbligatori

Calcola il tuo mutuo

Semplice e senza impegno
Anticipo

( % )
Mutuo

( % )

pochi semplici passi

inserisci i tuoi dati
Questionario completato
Grazie per aver richiesto un appuntamento senza impegno con un nostro Consulente del Credito e Assicurativo.

Hai inserito correttamente tutti i dati necessari e a breve riceverai una e-mail con un link da convalidare per inviare i tuoi dati.
Affiliato
Immobiliare San Benedetto Srl
Via San Benedetto, 104 09129 Cagliari (CA)

Il nostro staff


  • Marco Boi
    Affiliato

  • Ludovica Pinna
    Collaboratrice

  • Nicolò Taberlet
    Collaboratore

  • Filippo Tufo
    Collaboratore
Via San Benedetto, 104 09129 Cagliari (CA)
Zona: Cagliari-San Benedetto
Mostra su mappa
Orari: Aperti dal lunedì al venerdì dalle 9.00 alle 13.00 e dalle 16.00 alle 20.00 e il sabato dalle 9.00 alle 13.00.
Affiliato
Immobiliare San Benedetto Srl
Via San Benedetto, 104 09129 Cagliari (CA)

2026 Tecnocasa Franchising S.p.A. - P. IVA 08365160152 - Via Monte Bianco 60/A 20089 Rozzano (MI). Ogni agenzia ha un proprio titolare ed è autonoma. Privacy policy | Policy utilizzo | Cookie policy