Quadrilocale in vendita

Cagliari, Via Alfredo Catalani - San Benedetto
€ 340.000
4 locali 4 locali
130 Mq 130 Mq
2 bagni 2 bagni

Quadrilocale in vendita

Cagliari, Via Alfredo Catalani - San Benedetto

Descrizione annuncio

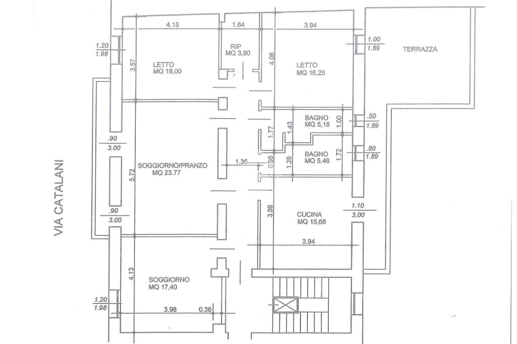
VIA ALFREDO CATALANI – Ampio quadrilocale con terrazza a livello

Situato nel cuore di San Benedetto, proponiamo in vendita una soluzione oggi rara nel mercato: un quadrilocale di 120mq dai generosi ambienti, sito al primo piano, dotato di una terrazza di 30mq ideale per chi vuole unire al comfort del centro città uno spazio esterno dove godersi il clima dell'Isola.

L'immobile, ristrutturato integralmente nei primi anni 2000, si presenta come un comodo quadrilocale facilmente adattabile a cinque vani con ogni ambiente separato. Le tre camere matrimoniali e il soggiorno a doppia finestra sono accompagnati da una cucina separata di 16mq, con accesso diretto alla terrazza, due bagni — uno con box doccia e uno con vasca — un comodo ripostiglio e un accogliente disimpegno completamente controsoffittato e rivestito in stucco veneziano che collega tutta l'abitazione.

L'appartamento è completamente autonomo, con impianto di condizionamento a pompe di calore presente nelle tre camere e nel soggiorno, oltre alla possibilità di allaccio al gas di città. Nel 2022 è stato realizzato un cappotto termico sulla facciata interna, per garantire un'ottima tenuta climatica tutto l'anno.

Una soluzione completa e versatile, nel cuore di uno dei quartieri più richiesti di Cagliari.

Mostra tutto

Nelle vicinanze

Trasporto pubblico Trasporto pubblico
Cagliari
Cagliari
1,8 Km
Cagliari Santa Gilla
Cagliari Santa Gilla
2,7 Km
Gennari
Gennari
250 m
Repubblica
Repubblica
470 m
Pergolesi (ang. via Cimarosa)
Pergolesi (ang. via Cimarosa)
100 m
Scuole Scuole
Pontificia Facoltà Teologica della Sardegna
300 m
Scuole
310 m
Scuola Elementare Via Garavetti
460 m
Liceo Dettori e Liceo Eleonora d'Arborea
490 m
Scuola Materna Sacro Cuore
660 m
Farmacia Farmacia
Farmacia
440 m
Farmacia Solinas
510 m
Piga
540 m
Farmacia Severino
620 m
Farmacia San Benedetto
710 m
Ospedali Ospedali
Clinica Villa S.Elena
670 m
Casa di cura Sant'Anna
1,1 Km
Ospedale "Roberto Binaghi"
1,3 Km
Pronto Soccorso San Giovanni di Dio
1,4 Km
ospedale San Giovanni di Dio
1,4 Km
Supermercati Supermercati
Supermercato Gruppo ISA
190 m
Despar
230 m
Gieffe
230 m
Amelia Pam
440 m
Super Pan
700 m
Negozi Negozi
Despar Mini Market
100 m
Crai
190 m
Il fornaio
270 m
Intimissimi Uomo
330 m
Original Marines
330 m
Bar Bar
Bar
200 m
Bar Monte Urpinu
420 m
Florio
810 m
Bar Florio
820 m
Matthew's Bar
820 m
Ristoranti Ristoranti
Ristoranti
470 m
Bliss
510 m
Zupposofia
540 m
My Flower
550 m
Bentō
640 m
Mostra tutto

Caratteristiche

Rif.:
61200145
Piano:
1 di 5 con ascensore (Piano basso)
Balconi:
1
Terrazzi:
1
Camere da letto:
3
Arredamento:
Assente
Mostra tutto
Prezzo Prezzo
€ 340.000
Rata mutuo Rata mutuo
€ 1.614 / mese
Spese annue Spese annue
€ 550
Proponi il tuo prezzoProponi il tuo prezzo
Immobile valutato con T·Valuta

Classe Energetica

D
D
D
D
D
D
D
D
D
Anno di costruzione:
1960
Riscaldamento:
Autonomo
Tipo impianto:
Ad aria
Tipo alimentazione:
Aria

Ti interessa visionare l'immobile?

Fissa un appuntamento  Fissa un appuntamento

Richiedi informazioni

Clicca su Leggi per aprire l'informativa
* Questi campi sono obbligatori

Calcola il tuo mutuo

Semplice e senza impegno
Anticipo

( % )
Mutuo

( % )

pochi semplici passi

inserisci i tuoi dati
Questionario completato
Grazie per aver richiesto un appuntamento senza impegno con un nostro Consulente del Credito e Assicurativo.

Hai inserito correttamente tutti i dati necessari e a breve riceverai una e-mail con un link da convalidare per inviare i tuoi dati.
Affiliato
Immobiliare San Benedetto Srl
Via San Benedetto, 104 09129 Cagliari (CA)

Il nostro staff


  • Marco Boi
    Affiliato

  • Ludovica Pinna
    Collaboratrice

  • Nicolò Taberlet
    Collaboratore

  • Filippo Tufo
    Collaboratore
Via San Benedetto, 104 09129 Cagliari (CA)
Zona: Cagliari-San Benedetto
Mostra su mappa
Orari: Aperti dal lunedì al venerdì dalle 9.00 alle 13.00 e dalle 16.00 alle 20.00 e il sabato dalle 9.00 alle 13.00.
Affiliato
Immobiliare San Benedetto Srl
Via San Benedetto, 104 09129 Cagliari (CA)

2026 Tecnocasa Franchising S.p.A. - P. IVA 08365160152 - Via Monte Bianco 60/A 20089 Rozzano (MI). Ogni agenzia ha un proprio titolare ed è autonoma. Privacy policy | Policy utilizzo | Cookie policy